Trilocale in vendita

Limbiate, Via Caravaggio
€ 328.000
3 locali 3 locali
130 Mq 130 Mq
2 bagni 2 bagni

Trilocale in vendita

Limbiate, Via Caravaggio

Descrizione annuncio

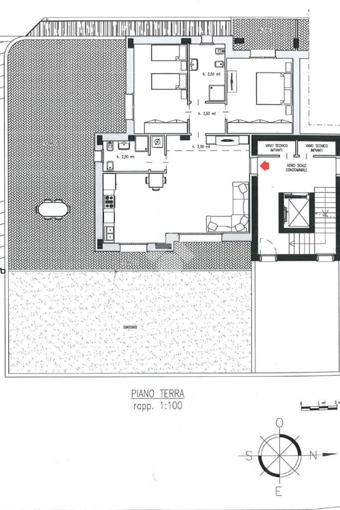
NUOVA COSTRUZIONE A LIMBIATE IN VIA CARAVAGGIO

Il cantiere , in fase di ultimazione, è composto da sole quattro unità abitative, posto in zona residenziale.

L'appartamento 'A' è posto al piano terra con giardino e terrazzo piastrellato che circonda l'abitazione su due lati.

L'appartamento è composto da ampio ingresso nel salone con la cucina abitabile, gli ambienti si affacciano sul portico piastrellato ed il giardino .

Il disimpegno conduce alla zona notte con due camere da letto matrimoniali , di cui una con balcone ed ai doppi servizi entrambi finestrati .

L'immobile è completo di cantina e possibilità box singolo a partire da 17.000,00 euro e box doppio a partire da 27.000,00 euro.

L'abitazione è dotata di riscaldamento autonomo a pavimento ed impianto di ventilazione meccanica.

Vi è inoltre la predispozione per l'impianto di allarme ed aria condizionata.

CONSEGNA GIUGNO/LUGLIO 2026

Mostra tutto

Nelle vicinanze

Trasporto pubblico Trasporto pubblico
Varedo
Varedo
1,9 Km
Bovisio Masciago-Mombello
Bovisio Masciago-Mombello
2,2 Km
Viale dei Mille (Limbiate)
Viale dei Mille (Limbiate)
680 m
Piazza 5 Giornate (Limbiate)
Piazza 5 Giornate (Limbiate)
1,2 Km
Viale Lombardia, 10 (Limbiate)
Viale Lombardia, 10 (Limbiate)
580 m
Ricariche auto elettriche Ricariche auto elettriche
LIMBIATE XXV Aprile | BECHARGE
750 m
Limbiate Mille | Becharge
1,1 Km
LIMBIATE Buozzi | BECHARGE
1,1 Km
Centro Commerciale Ramonda
1,5 Km
LIMBIATE Villa Pusterla | BECHARGE
2,4 Km
Scuole Scuole
Scuola Secondaria di primo grado Leonardo da Vinci
130 m
Scuola Primaria Gianni Rodari
290 m
Scuola Primaria Lorenzo Milani
770 m
Scuola Primaria Anna Frank
920 m
Scuola Primaria Fratelli Cervi
1,2 Km
Farmacia Farmacia
Farmacia Don Bosco
550 m
Nuova
900 m
Sant'Antonio
960 m
Europa
990 m
Gallo
1,0 Km
Ospedali Ospedali
Villa Bianca - Multimedica
1,6 Km
Presidio Giuseppe Corberi
2,0 Km
Ospedale Guido Salvini
3,0 Km
Supermercati Supermercati
U2
620 m
Euro Spin
710 m
Cooperativa
930 m
Carrefour Market
1,4 Km
Famila
1,4 Km
Negozi Negozi
CVG Milano
1,4 Km
Sorelle Ramonda
1,4 Km
Bazar Milleidee
1,8 Km
Negozi
2,2 Km
Zoggia
2,3 Km
Bar Bar
Bar
1,1 Km
Bar Kappa
2,3 Km
Roby American Bar
2,5 Km
Ristoranti Ristoranti
Smokin' Qitchen
650 m
Ristorante Mr. Food
980 m
Heigun
1,4 Km
Pizzeria Cairoli Da Beppe
1,4 Km
Corso Como 52
1,5 Km
Mostra tutto

Caratteristiche

Rif.:
61072939
Piano:
Terra con giardino di 1 con ascensore
Totale piani:
1
Balconi:
1
Terrazzi:
1
Camere da letto:
2
Mostra tutto
Prezzo Prezzo
€ 328.000
Rata mutuo Rata mutuo
€ 1.532 / mese
Proponi il tuo prezzoProponi il tuo prezzo

Classe Energetica

A1
A1
A1
A1
A1
A1
A1
A1
A1
EP globale non rinnovabile:
55.20 kW h/m² anno
EP invernale del fabbricato:
EP estiva del fabbricato:
Anno di costruzione:
2025
Riscaldamento:
Autonomo
Tipo impianto:
A pavimento
Tipo alimentazione:
Aria

Ti interessa visionare l'immobile?

Fissa un appuntamento  Fissa un appuntamento

Richiedi informazioni

Clicca su Leggi per aprire l'informativa
* Questi campi sono obbligatori

Calcola il tuo mutuo

Semplice e senza impegno
Anticipo

( % )
Mutuo

( % )

pochi semplici passi

inserisci i tuoi dati
Questionario completato
Grazie per aver richiesto un appuntamento senza impegno con un nostro Consulente del Credito e Assicurativo.

Hai inserito correttamente tutti i dati necessari e a breve riceverai una e-mail con un link da convalidare per inviare i tuoi dati.
Affiliato
International Immobili Snc
P.zza V Giornate, 5 20812 Limbiate (MB)

Il nostro staff


  • Angelo Dianese
    Affiliato

  • Zelinda Di Dio Fiorentino
    Responsabile

  • Lorenzo Dianese
    Collaboratore

  • Barbara Priori
    Affiliata

  • Andrea Rizzo
    Collaboratore
P.zza V Giornate, 5 20812 Limbiate (MB)
Zona: Limbiate-Centro
Mostra su mappa
Orari: Dal lunedì al venerdì: 09.00-12.30 e 14.30-19.30, sabato chiusura alle 12.30. Sabato pomeriggio e domenica mattina su appuntamento.
Affiliato
International Immobili Snc
P.zza V Giornate, 5 20812 Limbiate (MB)

2026 Tecnocasa Franchising S.p.A. - P. IVA 08365160152 - Via Monte Bianco 60/A 20089 Rozzano (MI). Ogni agenzia ha un proprio titolare ed è autonoma. Privacy policy | Policy utilizzo | Cookie policy