Trilocale in vendita

Limbiate, Via Caravaggio
€ 328.000
3 locali 3 locali
122 Mq 122 Mq
2 bagni 2 bagni

Trilocale in vendita

Limbiate, Via Caravaggio

Descrizione annuncio

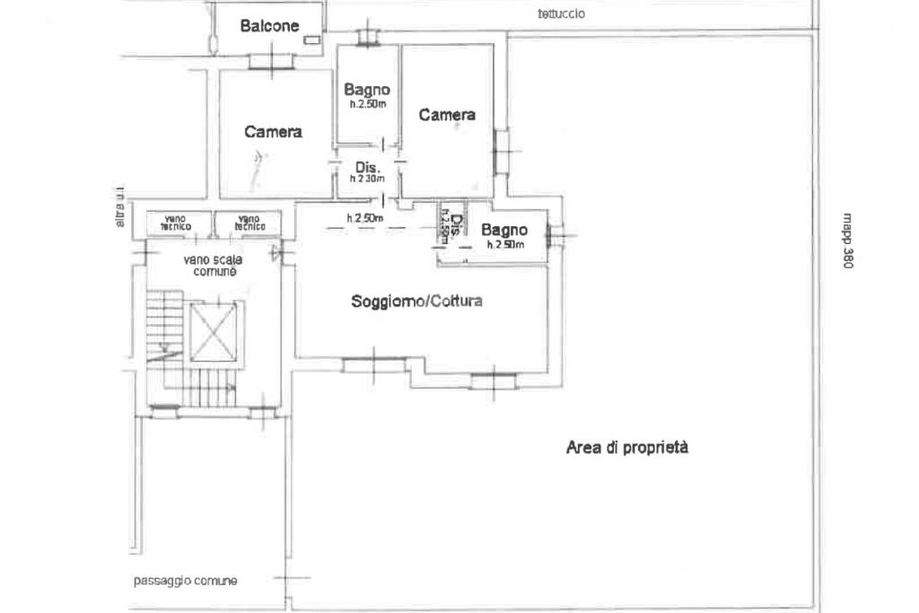
In contesto di RECENTE COSTRUZIONE, ultimato nel 2024 con rifiniture moderne e di qualità, appartamento posto al piano terra di una piccola ed elegante palazzina in classe energetica A1.

L'abitazione è circondata su tre lati da un'ampia area esterna privata, la parte laterale è piastrellata e adibita a terrazzo, la parte anteriore è con giardino.

L'ingresso dell'appartamento si apre direttamente sull'ampia zona giorno ben organizzata in un unico grande ambiente capace di ospitare comodamente il soggiorno e la cucina. Gli ambienti , dotati di grandi porte finestre scorrevoli esposte ad est, si affacciano sul giardino. Completa la zona giorno, l'antibagno ed il bagno finestrato e dotato di box doccia.

Il disimpegno separa la zona notte composta da camera matrimoniale con balcone e cameretta con affaccio sul giardino piastrellato, oltre all'elegante bagno padronale finestrato, con vasca.

Il riscaldamento autonomo a pavimento, con pompe di calore ottimizza al minimo i consumi.

L'immobile è dotato inoltre di impianto di ventilazione meccanica, in grado di garantire sempre un riciclo corretto dell'aria, zanzariere in tutti i serramenti , aria condizionata e predisposizione per impianto dall'allarme.

Il box e la cantina completano la proprietà.

Mostra tutto

Nelle vicinanze

Trasporto pubblico Trasporto pubblico
Varedo
Varedo
1,9 Km
Bovisio Masciago-Mombello
Bovisio Masciago-Mombello
2,2 Km
Viale dei Mille (Limbiate)
Viale dei Mille (Limbiate)
680 m
Piazza 5 Giornate (Limbiate)
Piazza 5 Giornate (Limbiate)
1,2 Km
Viale Lombardia, 10 (Limbiate)
Viale Lombardia, 10 (Limbiate)
580 m
Ricariche auto elettriche Ricariche auto elettriche
LIMBIATE XXV Aprile | BECHARGE
750 m
Limbiate Mille | Becharge
1,1 Km
LIMBIATE Buozzi | BECHARGE
1,1 Km
Centro Commerciale Ramonda
1,5 Km
LIMBIATE Villa Pusterla | BECHARGE
2,4 Km
Scuole Scuole
Scuola Secondaria di primo grado Leonardo da Vinci
130 m
Scuola Primaria Gianni Rodari
290 m
Scuola Primaria Lorenzo Milani
770 m
Scuola Primaria Anna Frank
920 m
Scuola Primaria Fratelli Cervi
1,2 Km
Farmacia Farmacia
Farmacia Don Bosco
550 m
Nuova
900 m
Sant'Antonio
960 m
Europa
990 m
Gallo
1,0 Km
Ospedali Ospedali
Villa Bianca - Multimedica
1,6 Km
Presidio Giuseppe Corberi
2,0 Km
Ospedale Guido Salvini
3,0 Km
Supermercati Supermercati
U2
620 m
Euro Spin
710 m
Cooperativa
930 m
Carrefour Market
1,4 Km
Famila
1,4 Km
Negozi Negozi
CVG Milano
1,4 Km
Sorelle Ramonda
1,4 Km
Bazar Milleidee
1,8 Km
Negozi
2,2 Km
Zoggia
2,3 Km
Bar Bar
Bar
1,1 Km
Bar Kappa
2,3 Km
Roby American Bar
2,5 Km
Ristoranti Ristoranti
Smokin' Qitchen
650 m
Ristorante Mr. Food
980 m
Heigun
1,4 Km
Pizzeria Cairoli Da Beppe
1,4 Km
Corso Como 52
1,5 Km
Mostra tutto

Caratteristiche

Rif.:
61075015
Piano:
Terra di 2 con ascensore
Totale piani:
2
Box:
1
Balconi:
1
Terrazzi:
1
Mostra tutto
Prezzo Prezzo
€ 328.000
Rata mutuo Rata mutuo
€ 1.516 / mese
Spese annue Spese annue
€ 1.200
Proponi il tuo prezzoProponi il tuo prezzo

Classe Energetica

A1
A1
A1
A1
A1
A1
A1
A1
A1
EP globale non rinnovabile:
71.59 kW h/m² anno
EP globale rinnovabile:
55.41 kW h/m² anno
EP invernale del fabbricato:
EP estiva del fabbricato:
Anno di costruzione:
2022
Riscaldamento:
Autonomo
Tipo impianto:
A pavimento
Tipo alimentazione:
Pannelli

Ti interessa visionare l'immobile?

Fissa un appuntamento  Fissa un appuntamento

Richiedi informazioni

* Questi campi sono obbligatori

Calcola il tuo mutuo

Semplice e senza impegno
Anticipo

( % )
Mutuo

( % )

pochi semplici passi

inserisci i tuoi dati
Questionario completato
Grazie per aver richiesto un appuntamento senza impegno con un nostro Consulente del Credito e Assicurativo.

Hai inserito correttamente tutti i dati necessari e a breve riceverai una e-mail con un link da convalidare per inviare i tuoi dati.
Affiliato
International Immobili Snc
P.zza V Giornate, 5 20812 Limbiate (MB)

Il nostro staff


  • Angelo Dianese
    Affiliato

  • Zelinda Di Dio Fiorentino
    Responsabile

  • Lorenzo Dianese
    Collaboratore

  • Barbara Priori
    Affiliata

  • Andrea Rizzo
    Collaboratore
P.zza V Giornate, 5 20812 Limbiate (MB)
Zona: Limbiate-Centro
Mostra su mappa
Orari: Dal lunedì al venerdì: 09.00-12.30 e 14.30-19.30, sabato chiusura alle 12.30. Sabato pomeriggio e domenica mattina su appuntamento.
Affiliato
International Immobili Snc
P.zza V Giornate, 5 20812 Limbiate (MB)

2025 Tecnocasa Franchising S.p.A. - P. IVA 08365160152 - Via Monte Bianco 60/A 20089 Rozzano (MI). Ogni agenzia ha un proprio titolare ed è autonoma. Privacy policy | Policy utilizzo | Cookie policy